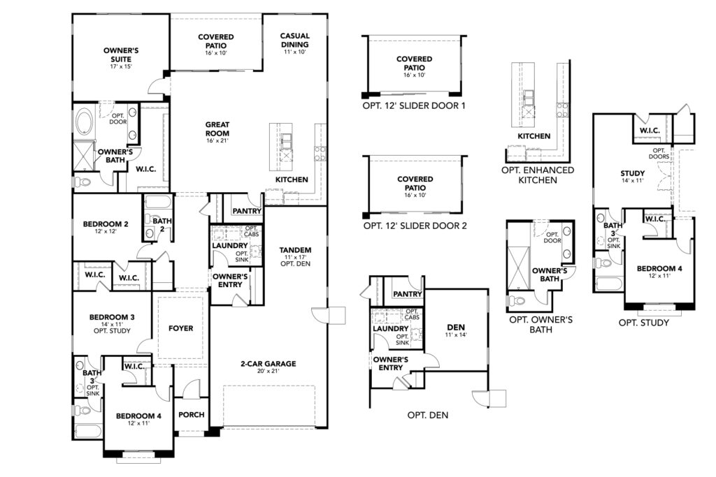
Jade – Elevation Ranch Lot 29 - Quick Move-In

From

$ 611,990

4 Bedrooms

3 Car Garage

2,510 Sq. Ft.

3 Bathrooms

1 Story

Neighborhood

Hacienda at Estrella

Available: Now